Newton Mearns
Private Client
February 2025 – August 2025
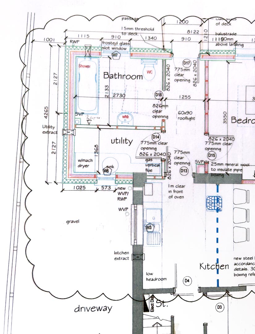
Our client approached us to extend and modernise their 1950s semi detached villa to create a more functional family home. The brief included adding a ground floor bedroom, utility room and family bathroom, whilst opening up the existing kitchen and dining areas to create a contemporary open plan living space. The project also required complete reflooring throughout and landscaping works to transform the overgrown gardens into usable outdoor space.
Managing your entire project from planning through to completion, coordinating all trades for seamless delivery and consistent quality throughout.
Over 100 years of building knowledge passed down through the Smith family, ensuring traditional craftsmanship meets modern standards on every project.
Building lasting relationships across Ayrshire and Renfrewshire through reliable communication, honest advice and dependable workmanship since 1923.
We managed this project as main contractor, carefully coordinating all trades to minimise disruption to the family. The structural works began with the installation of supporting steelwork to safely remove the load bearing partition wall between the kitchen and dining room, creating the open plan space the client desired. The rear extension was built using traditional methods to complement the existing 1950s construction, with careful attention paid to matching materials and ensuring seamless integration between old and new spaces. All landscaping works were scheduled towards the end of the project to avoid damage during construction.
The project was completed on schedule within six months, transforming a dated semi villa into a bright, functional family home. The open plan kitchen and dining area now forms the heart of the home, whilst the new extension provides essential additional accommodation. The herringbone flooring throughout creates visual continuity between old and new spaces, and the landscaping works have given the family a beautiful outdoor area to enjoy. Our client was delighted with the quality of workmanship and the minimal disruption experienced throughout the build, commenting particularly on our ability to keep the project running smoothly despite the complexity of the structural alterations.
We use cookies to improve your experience on our site. By using our site, you consent to cookies.
Manage your cookie preferences below:
Essential cookies enable basic functions and are necessary for the proper function of the website.
These cookies are needed for adding comments on this website.
Google reCAPTCHA helps protect websites from spam and abuse by verifying user interactions through challenges.
Statistics cookies collect information anonymously. This information helps us understand how visitors use our website.
Google Analytics is a powerful tool that tracks and analyzes website traffic for informed marketing decisions.
Service URL: policies.google.com (opens in a new window)